Neustrukturierung und Ausbau eines Dachgeschosses

 

PENTHOUSE 

am Promenadeplatz in München

 

GEIER·MAASS ARCHITEKTEN GmbH


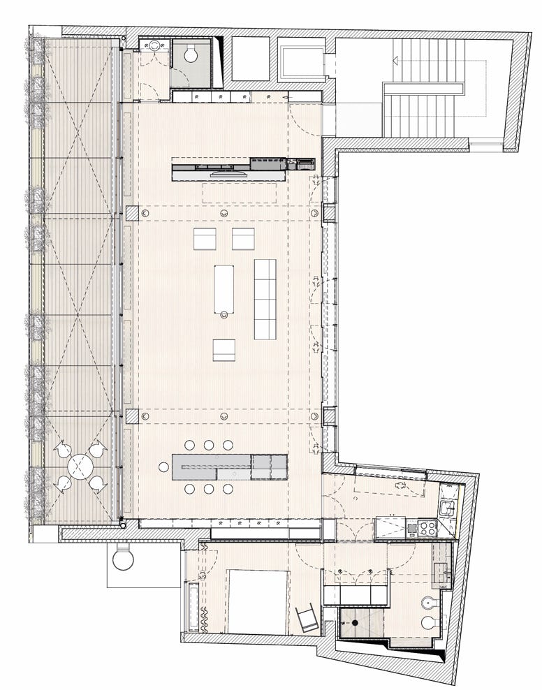
Das Dachgeschoss eines Quergebäudes in einer bestehenden Hofbebauung aus den 50er Jahren wurde zu einem hochwertigen Loft mit Nebenräumen ausgebaut.

Grundriss

Während sich der Raum nach Norden mit verschiebbaren transluzenten Stoffscreens schließen lässt verbindet er sich mittels einer öffenbaren Glasfassade mit der in ganzer Breite südlich vorgelagerten, markisenüberspannten Dachterrasse zu einer lichten und luftigen Einheit.

Brüstungsdetail

Auf der Brüstung stehende, mobile Pflanztröge bieten in Verbindung mit vor der Glasfassade angeordneten verschieblichen Holzpaneelen einen bedarfsgerechten, steuerbaren Sichtschutz.

Garderobenbereich

Baddetail

Bad

Nutzfläche:           110 ㎡ 

Planung LP 2-8:  2003 / 2004

Baukosten KG 300-400:       € 0,7 Mio

Staab Architekten

Projektpartnerschaft

Hausverwaltung Fries

Bauherr

© M.Heinrich, München

Fotos

Die Website verwendet Cookies Bitte die Datenschutzerklärung für mehr Details lesen.

Setzt ein technisches Cookie, das aufzeichnet, dass Sie die Zustimmung verweigern. 

Es wird nicht nochmals nachgefragt werden.

OK

Entfernt das Zustimmungscookie aus Ihrem Browser.